Меню Поиск Разместить Избранное Кабинет

ЖК На Крупской, 100

Готовность 35% Написать Показать телефон

Подписка на изменение цены

Вам придет уведомление об изменениях цен и скидках
или на почту
Нажимая кнопку «Подписаться» вы соглашаетесь с политикой конфиденциальности

кирпичный, 16 этажей, комфорт-класс, срок сдачи — 4 кв 2027, готовность 35%. Обновлено 16 марта 2026 г.
Город, район
Стр. адрес
Крупской, 100 стр.
Тип дома
кирпичный
Класс жилья
Комфорт
Этажность
16 этажей
Площади квартир
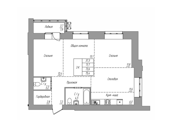
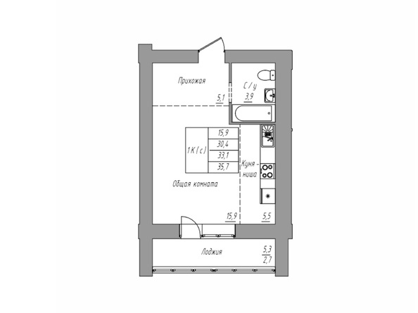
от 35,6 до 83,2 м²
Высота потолков
2,7 - 3,3 м
Квартир на этаже
7
Срок сдачи
4 кв 2027 (проект)
Состояние
возведение средних этажей
30 машино-мест в подземном паркинге
Удобно семьям с детьми (школы и детсады в радиусе 500 м)
Кладовые помещения 3,4 - 6,7 м²
Без отделки

О жилом комплексе На Крупской, 100

Новый кирпичный дом с подземным паркингом расположен в Железнодорожном районе Барнаула по адресу: ул. Крупской, 100.

Одноподъездная кирпичная новостройка составляет 16 этажей в высоту. В доме 111 квартир площадью от 35,6 до 83,2 кв.м. На -1 этаже находятся индивидуальные кладовые и машино-места.

Преимущества ЖК На Крупской, 100:

  • квартиры в кирпичном доме;
  • панорамное остекление балконов;
  • квартиры с местом под гардеробную;
  • кладовые на -1 этаже;
  • 2 санузла в 3-комнатных квартирах;
  • свободная планировка квартир;
  • грузовые лифты в доме;
  • школы и детские сады в 5 минутах пешком;
  • архитектурная подсветка фасада.

 

Застройщик: ООО СЗ СП1 (ГК Строительная Перспектива).

ГК Строительная перспектива
Отдел продаж застройщика:
Позвонить застройщику
Скажите застройщику, что нашли эту информацию на СИБДОМЕ
Написать
Информация обновлена 16 марта 2026

Квартиры в ЖК На Крупской, 100 от застройщика

Комнаты:

В карточку новостройки попадают только платные объявления со статусами: Приоритетное объявление, VIP - объявление, Спецобъявление, Горячее объявление. Оплатить объявление можно online сразу при его размещении. В этом случае, ваше объявление разместиться и в разделе Недвижимость и в Карточке новостройки.

Разместить объявление

Если вы застройщик, подрядчик или агентство недвижимости, то разместить здесь свои объявления можно отправив заявку на подключение и оплатив месячный тарифный план.

Прайс-лист для застройщиков и агентств недвижимости