Меню Поиск Разместить Избранное Кабинет

Продается универсальное помещение, 134.5 м²

Объявление 212593, обнов. 05.10.25
19
4 740 000 ₽ 35 242 ₽/м²
Следить за ценой

Подписка на изменение цены

Мы сообщим вам, если цена объекта изменится
или на почту
Нажимая кнопку «Подписаться» вы соглашаетесь с политикой конфиденциальности
Этаж
1
Общая площадь
134.5 м²

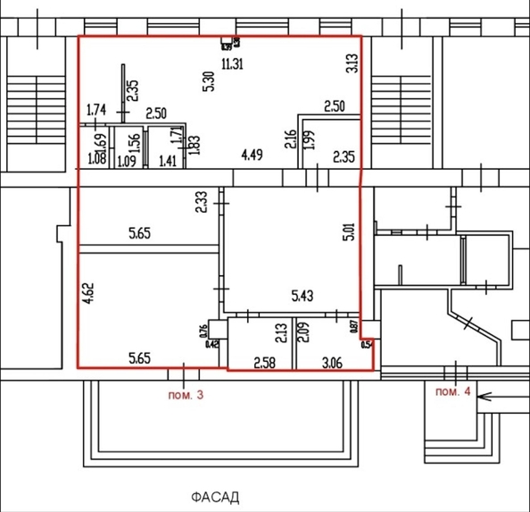
Сбер А предлагает к реализации помещение площадью 134,5 кв. м., расположенного по адресу: Алтайский край, г. Яровое, кв-л Б, д.25, помещение 3
Продажа посредством проведения торгов на электронной площадке Сбербанк-АСТ.
Номер процедуры: SBR065-2509250007
Ссылка на торги: https://utp.sberbank-ast.ru/Property/NBT/PurchaseView/43/0/0/3436086
Собственник: Сибирский банк ПАО Сбербанк
О лоте:
Нежилое помещение площадью 134,5 кв.м
Этажность: 1
Кадастровый номер: 22:72:060403:1762
Обратная аренда: нет
Особые условия:
Особые условия указаны в "Аукционной документации" к лоту.
Дополнительная информация, документы и условия реализации указаны на площадке в разделе «Документы».
По всем вопросам, связанным с лотом, обращайтесь в рабочее время по телефону с 09:00 до 18:00 по МСК.

Яна СБЕРБАНК АСТ Номер объявления SD22-212593.

По вопросам покупки обращаться:
Позвонить
Скажите агентству, что нашли это объявление на СИБДОМЕ
Написать

Не можете найти нужный вариант?

Оставьте заявку на подбор объекта и мы отправим ее трем проверенным нами агентствам недвижимости. Они возьмут все вопросы поиска на себя.
Нажимая кнопку «Отправить заявку» вы соглашаетесь с политикой конфиденциальности.